Your search returned no results
Throughout the entire process, Pressalit’s consultancy ensures a cohesive collaboration that delivers high-quality, inclusive solutions for every stakeholder involved.
Changing Places by Pressalit offers a step-by-step consultancy service to ensure your project is seamlessly executed from concept to completion. With our expertise, you receive tailored guidance through every phase of a project.
By working with Pressalit, every phase of the project is streamlined, ensuring an accessible, high-quality Changing Place that serves users effectively while meeting the goals of you as an architect, building owner, or contractor.
We ready to help you get the best possible process and outcome in your Changing Places facility project. So please do not hesitate to reach out.

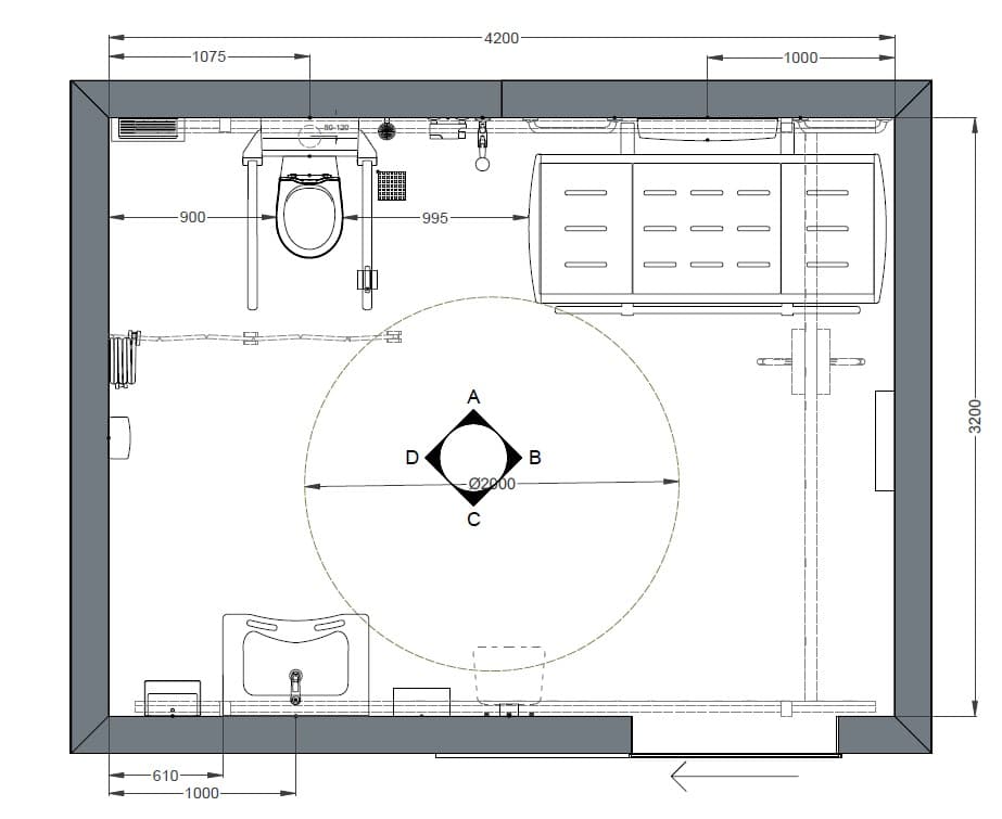
Pressalit provides invaluable advice on the design and layout of the Changing Place to meet accessibility standards and optimise functionality. This helps architects ensure compliance with local regulations while creating user-friendly spaces.
Getting ready for the next step: product and solution selection.

We offer expert recommendations on choosing solutions tailored to the unique needs of the facility and its users. This ensures a balance of durability, aesthetics, and practicality, giving building owners confidence in their investment.
We make sure everything is set for the implementation phase.

We support contractors with detailed installation guidance, ensuring all elements work harmoniously together. This minimises errors, streamlines timelines, and guarantees a smooth transition from blueprint to reality.
If you have any questions please reach out. We are here for you.

Understanding Changing Places
Learn why a Changing Places facility is important and what it is
Who & where
Read more about the people and places that benefit from Changing Places
Products & solutions
See our wide range of products and solutions for Changing Places
Regulatory compliance
Let us help you understand and comply with your local guidelines and legislation.
Step-by-step consultancy
We will help you with anything in the process from design to implementation
Let us be the experts so you don't have to be!
More on designing the optimal Changing Places facility